[tab name='CARATTERISTICHE']
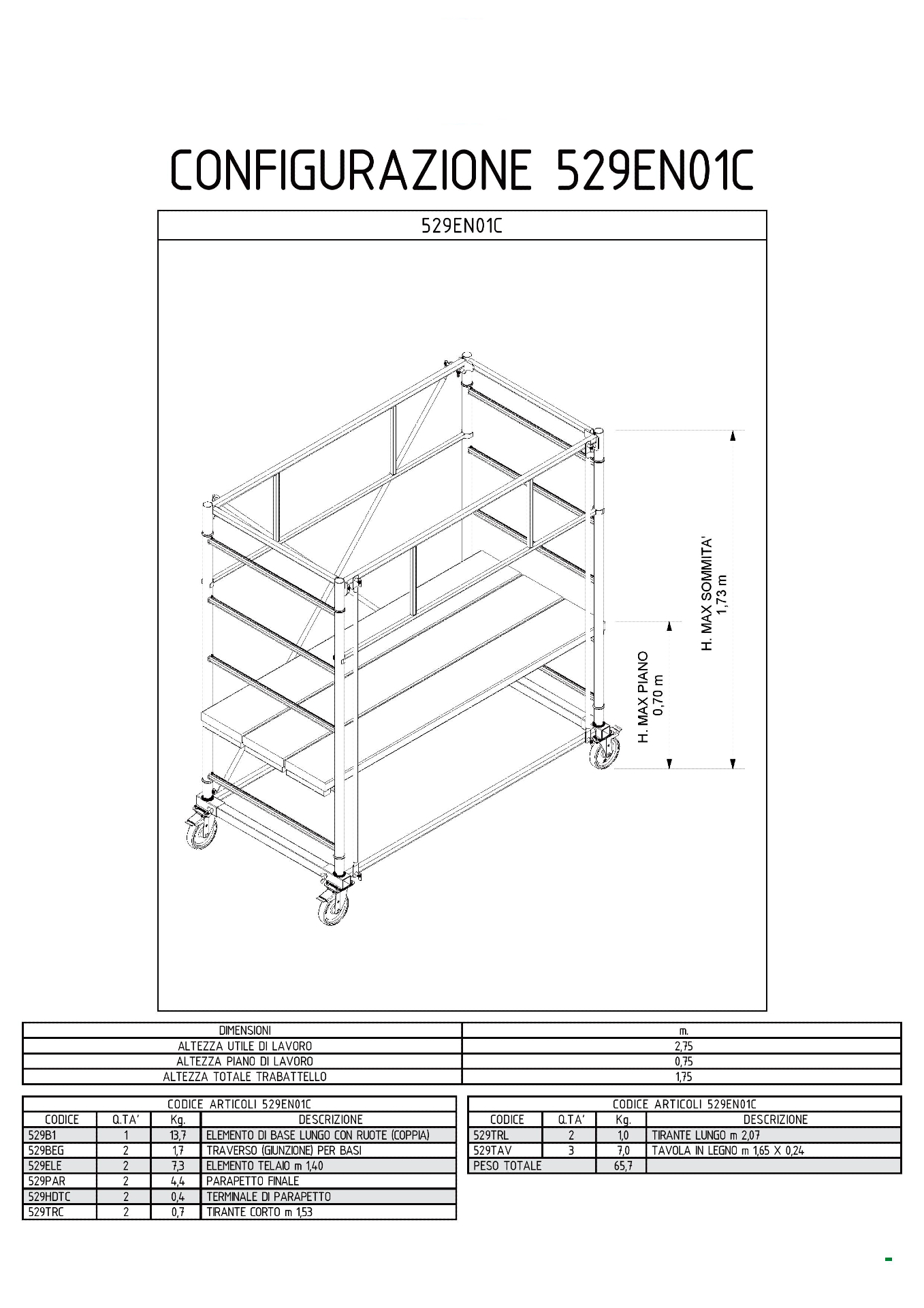
Su nonsoloscale.com trovi IPPIS 529EN01C, la configurazione base (1 campata) del nostro ponteggio modulare ridotto: compatto, maneggevole e pensato per lavorazioni a bassa quota in interni/esterni. Struttura in acciaio con risalita interna protetta, piano con botola antisdrucciolo e ruote Ø150 con freno. Conforme UNI EN 1004, Classe 2 (portata 150 kg/m²), con impiego previsto senza ancoraggi entro i limiti della configurazione.
| Parametro | Valore |
|---|---|
| Campate | 1 |
| Altezza totale torre (H) | 1,75 m |
| Altezza max piano | 0,75 m |
| Altezza max raggiungibile | 2,75 m |
| Ingombro base | 1,60 × 0,80 m |
| Norma / Classe | UNI EN 1004 / Classe 2 (150 kg/m²) |
| Risalita | Interna tramite piano con botola |
| Ruote | 4 × Ø150 mm con freno |
| Regolazioni | Piani posizionabili ogni 300 mm |
Uso senza ancoraggi entro i limiti indicati; attenersi sempre al manuale d’uso e alla valutazione dei rischi. Accessori come puntoni e livellatori sono disponibili per aumentare impronta e compensare dislivelli.
La versione 01C è la più agile della serie: ideale per manutenzioni rapide, impianti, finiture e lavori di adattamento in ambienti ristretti. Se cerchi trabattelli professionali compatti e sicuri, 529EN01C offre il giusto equilibrio tra stabilità, praticità e mobilità.
Richiedi informazioni / preventivo
Alternativa: preventivi@nonsoloscale.com
È conforme alla UNI EN 1004 e rientra in Classe 2 con portata 150 kg/m² distribuiti sul piano di lavoro.
L’impiego è previsto senza ancoraggi entro le altezze e le modalità della configurazione 01C. Resta obbligatorio attenersi al manuale e alle procedure di sicurezza.
Per 529EN01C l’altezza raggiungibile è 2,75 m, con piano a 0,75 m e H torre 1,75 m.
Sono disponibili livellatori a vite per pendenze e puntoni di equilibrio per aumentare la stabilità. Contattaci per la compatibilità con la tua configurazione.
Sì. L’ingombro ridotto (1,60 × 0,80 m) e la struttura modulare lo rendono indicato per aree tecniche, corridoi e locali di manutenzione.
[tab name='SCHEDE E CERTIFICATI']







ORARIO DALLE 9 ALLE 12 E DALLE 14 ALLE 18 DA LUNEDI AL VENERDI
orari : Lunedi--> Venerdi 9/12 14/18