[tab name='CARATTERISTICHE']
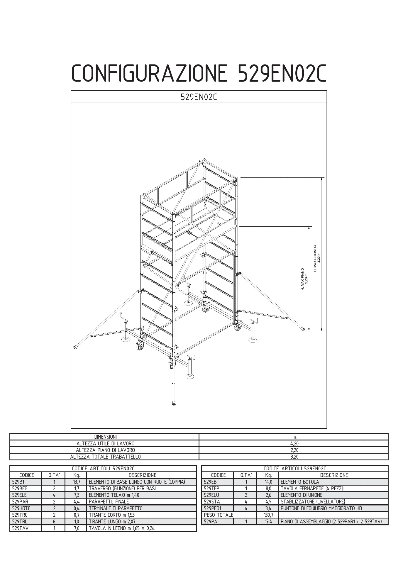
Su nonsoloscale.com trovi IPPIS 529EN02C, la configurazione a 2 campate del nostro ponteggio modulare ridotto: più quota operativa mantenendo ingombro compatto, montaggio rapido e sicurezza di risalita interna con piano a botola. Conforme UNI EN 1004, Classe 2 (portata 150 kg/m²), con impiego previsto senza ancoraggi entro i limiti della configurazione.
| Parametro | Valore |
|---|---|
| Campate | 2 |
| Altezza totale torre (H) | 3,20 m |
| Altezza max piano | 2,20 m |
| Altezza max raggiungibile | 4,20 m |
| Ingombro base | 1,60 × 0,80 m |
| Norma / Classe | UNI EN 1004 / Classe 2 (150 kg/m²) |
| Risalita | Interna tramite piano con botola |
| Ruote | 4 × Ø150 mm con freno |
| Regolazioni | Piani posizionabili ogni 300 mm |
Uso senza ancoraggi entro i limiti indicati; attenersi sempre al manuale d’uso e alla valutazione dei rischi. Accessori come puntoni di equilibrio e livellatori a vite sono disponibili per aumentare stabilità e compensare dislivelli.
Questa versione è pensata per chi necessita di una quota di lavoro intermedia con massima maneggevolezza. Indicata per manutenzioni, impiantistica e finiture in contesti dove servono trabattelli professionali e ponteggi modulari dal ridotto ingombro.
Richiedi informazioni / preventivo
Alternativa: preventivi@nonsoloscale.com
È conforme alla UNI EN 1004 e rientra in Classe 2 con portata 150 kg/m² distribuiti sul piano di lavoro.
L’impiego è previsto senza ancoraggi entro altezza e modalità della configurazione 02C. Attenersi comunque al manuale d’uso e alla valutazione dei rischi.
Per 529EN02C l’altezza raggiungibile è 4,20 m, con piano a 2,20 m e H torre 3,20 m.
Per aumentare stabilità e versatilità, suggeriamo puntoni di equilibrio e livellatori a vite. Contattaci per la compatibilità con la tua configurazione.
Sì. L’ingombro ridotto (1,60 × 0,80 m) e la struttura modulare permettono l’uso in corridoi e locali tecnici con passaggi stretti.
[tab name='SCHEDE E CERTIFICATI']







ORARIO DALLE 9 ALLE 12 E DALLE 14 ALLE 18 DA LUNEDI AL VENERDI
orari : Lunedi--> Venerdi 9/12 14/18